Автономная душевая М+Ж с раковинами 215

Цена
3 792 270 

Характеристики

Характеристики

Описание

Автономные душевые блок-контейнеры не требуют подключения к водоснабжению и канализации и могут много раз перевозиться с места на место. Автономные душевые блок-контейнеры – санитарные блок-модули для организации комфортного мытья и гигиены людей в общественных местах, на предприятиях, производствах, стройплощадках, массовых мероприятиях, городках вахтовым методом и тому подобных объектах.

Стоимость автономного душевого блок-контейнера зависит от планировки и комплектации.

Модульные душевые из блок-боксов бывают трех типов: мужскими (М), женскими (Ж) и универсальными мужской+женский (М+Ж).

Возможно изготовление:  
  • С терминалом для оплаты
  • С местом для кассира
  • Индивидуальный дизайн
  • Любые изменения по желанию заказчика

Характеристики:

  • Несущий каркас:
    • Блок-контейнер: 9,00 х 2,42 х 2,59 м
    • Нижняя рама: швеллер 120 х 50 х 3
    • Верхняя рама: стальной профиль специальный 185 х 85 х 3
    • Угловые стойки: угловой профиль 170 х 150 х 3
  • Окраска каркаса: Алкидное покрытие с фосфатом цинка PRIMALKYD ZP 488
  • Внутренний каркас:
    • Лаги пола – стальной швеллер 100 х 50 х 3
    • Лаги потолка – брус 40 х 100
    • Внутренний каркас стен – брус 40 х 100
  • Наружная отделка: Металлический профилированный лист С-8 с полимерной окраской. Стандартные цвета: синий / серый / белый. RAL 5005 / 7004 / 9003
  • Дно контейнеров: Металлический профилированный лист С-8 оцинкованный
  • Внутренняя отделка:
    • Стены: ВЛДСП белая. Раскладка – металлический омега-профиль
    • Потолок: ВЛДСП белая
    • Пол черновой: ЦСП
    • Пол чистовой: Линолеум, плинтуса ПВХ
  • Теплоизоляция: Минеральная вата. Стены/пол/потолок — 100/100/100 мм
  • Пароизоляция: Пароизоляционная плёнка
  • Внутренние перегородки: Перегородки внутри контейнера каркасного типа. Утепление 50 мм. Материал отделки перегородок соответствует отделке стен. – 2 шт.
  • Двери наружные: Металлическая усиленная двухлистовая противопожарная Valberg – 3 шт.
  • Высота потолка: Внутренняя высота потолка – 2,23 м. Внешняя высота потолка – 2,59 м
  • Электрика:
    • Входная розетка, щит распределительный, автоматические выключатели. Разводка в кабель-канале: кабель 3 х 2,5 на розетки, кабель 3 х 1,5 на освещение. IP54, УЗО.
    • Розетки 220В двойные – 7 шт.
  • Отопление и Вентиляция:
    • Электроконвектор настенный 1,0 кВт – 3 шт.
    • Электровентилятор вытяжной – 2 шт.
  • Освещение: Светодиодные LED потолочные светильники – 3 шт.
  • Сантехника:
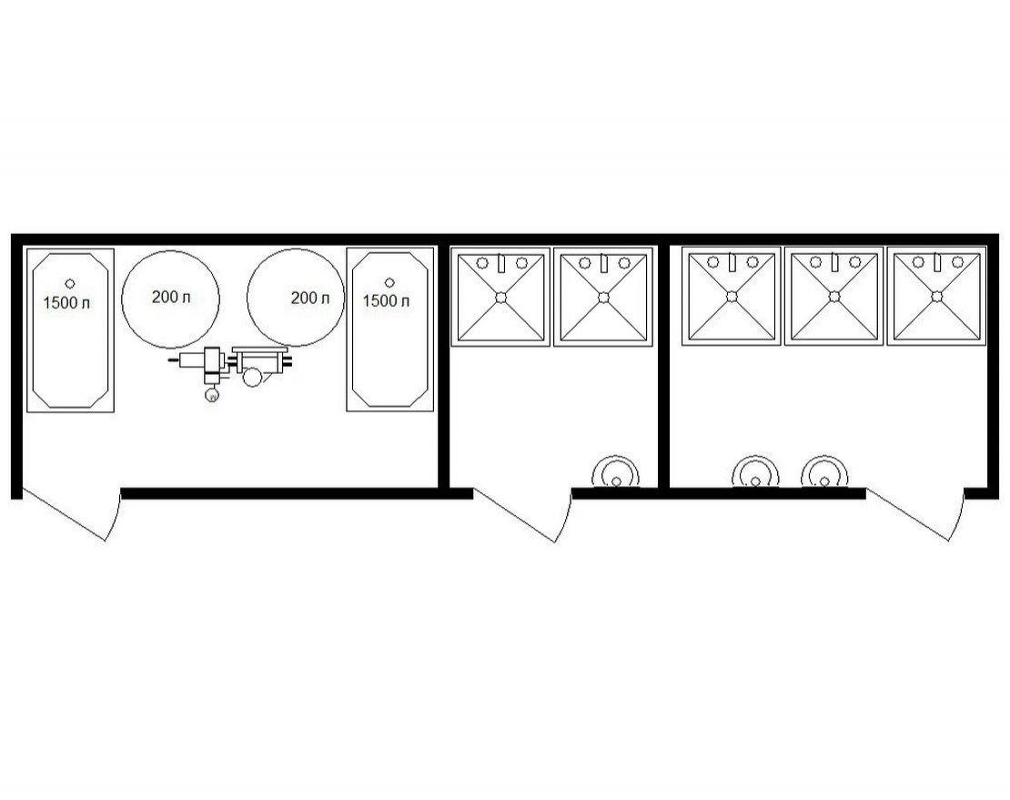
    • Душевые – 5 шт.: душевые поддоны с сантехническими перегородками и шторками или по доп. согласованию: душевые кабины в сборе (угловые/фронтальные)
    • Раковины фаянсовые со смесителями – 3 шт.
  • Автономное водоснабжение и канализация:
    • Бак ПВХ для воды 1500л
    • Бак ПВХ для стоков 1500л
    • Насосная станция
    • Насос канализационный
    • Бойлер 200л – 2шт.
  • Разводка по воде: ХГВ трубы полипропиленовые, муфты, обводы, шаровые краны, отводы, тройники, гибкие подводки, переходники, крепеж и т. д.
  • Канализация: Трубы 110/50/32, сифоны, гофры, муфты, переходники, отводы, обводы, тройники, заглушки, крепеж и т. д.
  • Кровля контейнеров: Покрыта оцинкованными стальными листами. Двойное фальцевое соединение кровельных картин. Малый скат кровли (2,5 см)

Адрес пункта выдачи в Магнитогорске: ул Профсоюзная, дом 8А.

Самовывоз в Магнитогорске
По адресу: Магнитогорск проспект Пушкина 6Г Строение 1

Доставка без выгрузки по Магнитогорску 2 000 

Карталы, Варна, Бреды, Верхнеуральск, Локомотивный, Межозёрный, Кизильское, Агаповка, Чесма, Фершампенуаз

По QR коду

Банковской картой на сайте

Рассрочка -- от Тинькофф

Безналичный платеж для юр.лиц

ВозвратВ течение 14 дней

Гарантия 12 месяцев

Похожие изделия